






Configuration
4 BHK Flat
Size
2415 SqFt - 2445 SqFt
Possession Starts
Dec, 2029
Launch Date
Apr, 2023
Overview
Price
₹56.08 L - ₹56.77 L
Configuration
4 BHK Flat
Project Area
0.41 Acre
Size
2415 SqFt - 2445 SqFt
Project Status
Under Construction
Total Towers
1
No. of Floors
6
Total Units
11
Possession Starts
Dec, 2029
Launch Date
Apr, 2023
Furnished Status
Not Furnished
RERA Id
PR/GJ/AHMEDABAD/AHMEDABAD CITY/AUDA/RAA12577/041123
Project USPs
Designed to provide comfort and style to residents.
It offers a contemporary living experience tailored to suit diverse lifestyles and preferences.
A futuristic and seamless lifestyle awaits you.
Well-equipped to provide all the modern amenities.
Green Space eith open area and Sitting Arrangment.
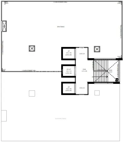
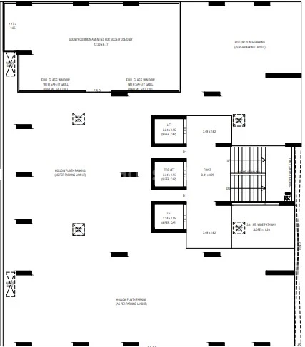
Floor Plan
Location
Nearby Places
The New Tulip International School-2min
Shivam Hospital Bopal-3min
Thaltej Metro Station-9min
Jay bhavani vadapav-4min
Max-2min
Goswami Ji Garden-4min
Address
On Map
Amenities
- 24x7 Security
- 24X7 Water Supply
- Car Parking
- CCTV
- Children's Play Area
- Community Buildings
- Cricket Pitch
- Fire Extinguiser
- Fire Fighting System
- Fire NOC
- Fire Sensor
- Garden
- Landscaped Gardens
- Library
- Playgrounds
- Reception Area
- Security Cabin
- Security Gate
- Senior Citizen Corner
- Street Lighting
- Vastu Compliant
- Water Storage
Brochure
Developer
FAQs
Developer