






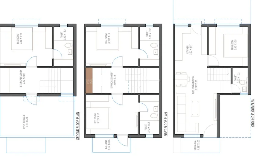
These homes seamlessly blend comfort with modernity
offering residents a lifestyle that harmonizes with nature
The magnificently designed villas are not just residences but sanctuaries of elegance and tranquility.
while ample greenery surrounding the area offers a serene environment.
Shree Sentosa Royal features additional conveniences such as a party lawn for gatherings and celebrations
Municipal High School 1 km
Uma Primary Vidhyalaya 1.9 km
Samarpan - Kothari Hospital 1.1 km
Pratham hospital 1.8 km
Dehgam ST Bus Station 0.8 km
Palaiya Bus Stop 1.9 km
Bhimravpura Chowkadi Bus Stop 2.3 km
Magodi Lat Bus Stop 3.6 km
Fun Cinemas 1.9 km